top of page

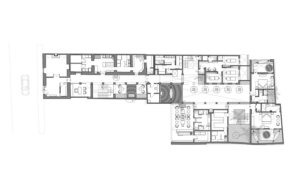
CLANDESTINO HOTEL II

TRABAJOS

Arquitectura

Interiorismo

Branding

​

CONSTRUCCIÓN

JCDL Constructores

​

DÓNDE

San Miguel de Allende, Guanajuato

​

CUÁNDO

2020

​

DIMENSIONES

845 m2

​

​

fotografías

FD, SPG y EDL

bottom of page